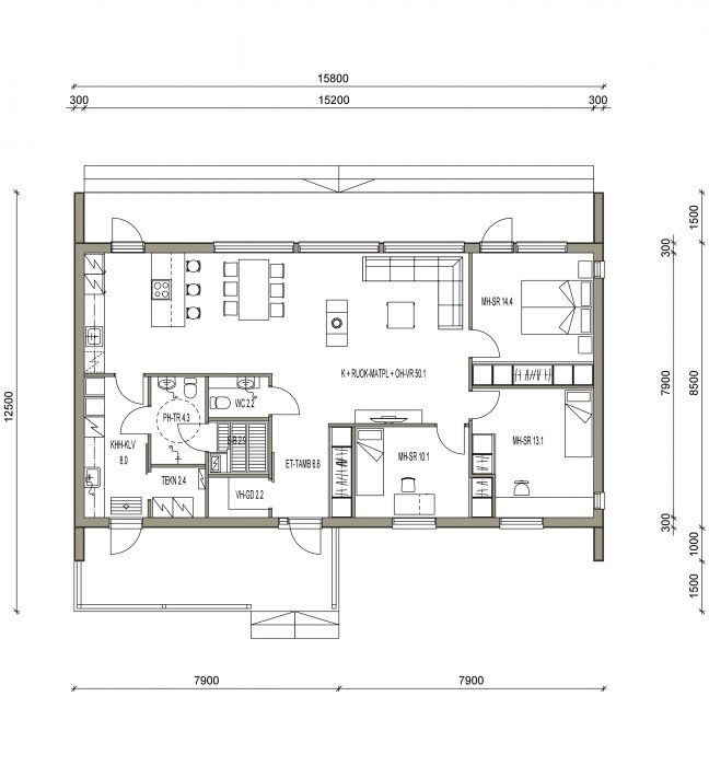
maison cubique plan 120 m²