Panneaux Maison Ossature Bois

Spécialiste des Kits pour Maison à Ossature Bois et panneaux sips extensions et surélévation de toiture


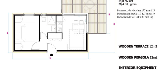
toiture et murs sips


Posted By on Sep 14, 2018

Détails typiques des éléments de construction toiture et murs sips Dans cette section, nous décrivons brièvement les matériaux utilisés dans une construction Eco standard. Le panneau SIP  le matériau de base Le système de construction  se compose de panneaux de toiture et de murs isolés structurellement, qui peuvent être utilisés pour créer des bâtiments de 4 étages maximum, y compris une construction en pièce. En raison de leur poids...

Read More

Choisissez une catégorie


Posted By on Sep 4, 2018

Choisissez une catégorie Fenêtres (PVC, bois, alu)Fenêtres en aluminium (Portes-Fenêtres, Baies vitrées) , … Construction – Extension Construction bois , Construction immeuble d’habitations , Construction maison , Extension maison , … Rénovation intérieure Rénovation maison, appartement Rénovation bureaux , Rénovation magasin , … Chauffage – Chaudière  (installation et remplacement) , Chauffage gaz...

Read More

  Devis extension maison ou surélévation   Type actuel de maison Type actuel de maison Maison individuelle plain-pied Maison individuelle à étages Type de construction Type de construction Traditionnelle (parpaing) En brique Ossature bois Non défini Autre Type de construction pour l’extension Type de construction pour l’extension Traditionnelle (parpaing) En brique Ossature bois Non défini Autre L’extension...

Read More

Prise en charge des travaux


Posted By on Juin 17, 2018

Prise en charge complète avec suivi des travaux Vous ne voulez pas perdre votre temps à chercher le meilleur devis? Vous ne voulez pas de stress avec les ouvriers? Nous concevons un projet en fonction de votre budget. Nous nous occupons de tout, l’avant projet, les demandes de devis et la gestion du chantier et des différents corps de métier. Travaux jusque 25000€    9% du montant des travaux HTVA Travaux jusque 50000€      8%...

Read More

Panneau Isolant sips


Posted By on Juin 4, 2018

Panneau Isolant Structural   est un panneau isolant structural avant-gardiste. Il vous fera économiser temps, énergie, argent et main-d’œuvre. Conçu dans le respect de l’environnement, il possède l’isolant le plus performant du marché. Simple à l’assemblage Rapide d’installation Facilite le contrôle de qualité sur les chantiers Étanchéité efficace et favorise l’équilibre de l’air ambiant Transportable et facilement manœuvrable...

Read More